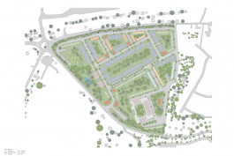
This 332 unit masterplan for a site within the Kent Downs was designed in close collaboration with Tony Pidgley of Berkeley Group. The scheme features a high-density mix of apartments, houses and communal green spaces with the intention of creating a new intergenerational community in an Area of Outstanding Natural Beauty.











